geo eng
კალოუბნის 41 ბ

კალოუბნის 41 ბ

აირჩიეთ სართული

კალოუბნის 41 ბ - პროექტის სურათი
კალოუბნის 41 ბ - პროექტის სურათი

სართულები

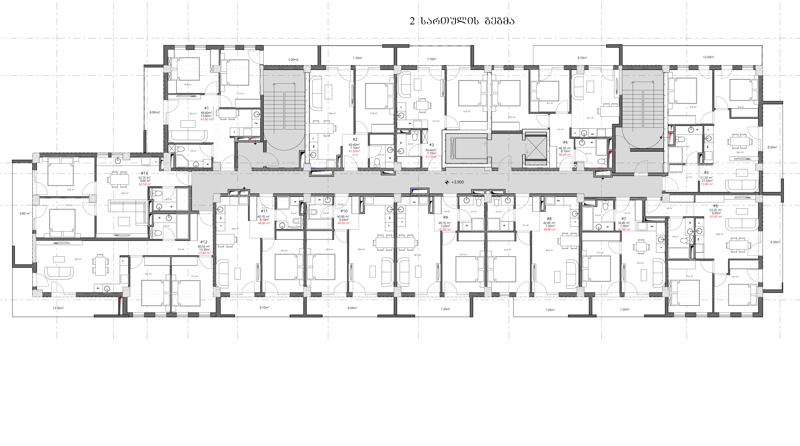
სართული 2

სართულის გეგმა

ბინა 1

ფართი: 61.6 კვ.მ

ბინა 2

ფართი: 47.5 კვ.მ

ბინა 3

ფართი: 41.7 კვ.მ

ბინა 4

ფართი: 56.4 კვ.მ

ბინა 5

ფართი: 73 კვ.მ

ბინა 6

ფართი: 62.5 კვ.მ

ბინა 7

ფართი: 42 კვ.მ

ბინა 8

ფართი: 49.8 კვ.მ

ბინა 9

ფართი: 47.9 კვ.მ

ბინა 10

ფართი: 49.3 კვ.მ

ბინა 11

ფართი: 48.8 კვ.მ

ბინა 12

ფართი: 73.8 კვ.მ

ბინა 13

ფართი: 62.5 კვ.მ

ჩვენ შესახებ

,,ბალავარი ჰოლდინგი” არის სრული მომსახურების საკონტრაქტო კომპანია, რომელიც სპეციალიზირებულია ყველა სახის სამშენებლო პროექტში: მათ შორის - საცხოვრებელი და კომერციული, დიდი და მცირე სამშენებლო პროექტები. კომპანიას გააჩნია მშენებლობის ყველა ფაზის მართვის მდიდარი გამოცდილება და ძირითადი ქვეკონტრაქტორებისა და კონსულტანტების ძლიერი გუნდი.

- პროექტის განვითარება
- შენობების სტრუქტურული ანგარიში
- სამშენებლო სამუშაოების შესრულება
- ინტერიერის და ექსტერიერის დიზაინი
- სარემონტო სამუშაოების შესრულება

 

მიღწევები

15+

დასრულებული პროექტები

200+

თანამშრომლები

150,0002+

მოცულობა